PMB/SMED/OCATHARINENSE
A Prefeitura de Biguaçu abriu o processo licitatório para construção da Escola de Tempo Integral no município, localizada na rua Quintino Bocaiúva, no bairro Universitário, com investimento de R$ 12,4 milhões através do Novo PAC (Programa de Aceleração do Crescimento), do Governo Federal.
A abertura dos envelopes com as propostas das empresas interessadas está marcada para o dia 5 de dezembro, a partir das 14h15. A modalidade da licitação é a Concorrência Pública (menor preço global). O prazo será de 18 meses para execução da obra, após a assinatura da ordem de serviço.
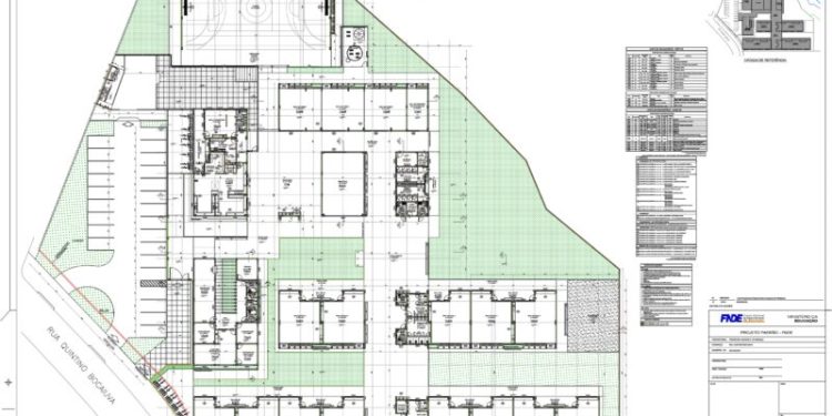
A estrutura foi projetada para comportar 455 alunos em período integral ou até 910 em dois turnos (matutino e vespertino). A construção terá 13 salas de aula, biblioteca, salas administrativas (diretoria, secretaria, coordenação e sala de professores), sala multiuso, almoxarifados, copa, cozinha e refeitório equipados, banheiros e vestiários masculino e feminino, quadra poliesportiva coberta, playground, pátios externos com jardim e estacionamento, acessibilidade garantida em toda a unidade, entre outras instalações necessárias para o pleno funcionamento da escola.
O projeto da Escola de Tempo Integral em Biguaçu foi protocolado pela Prefeitura durante o ano de 2023 e aprovado pelo Novo PAC em 2024, com a liberação dos recursos em 2025. Naquela ocasião, a administração municipal também conseguiu aprovar uma nova Unidade Básica de Saúde (UBS) de porte III e um Centro de Atenção Psicossocial (CAPS) infantojuvenil de porte III.
O prefeito Salmir da Silva destaca que “investir em educação é primordial para dar uma base sólida à nossa juventude, para que no futuro as nossas crianças e adolescentes estejam bem preparadas. O projeto da Escola de Tempo Integral é uma das nossas prioridades na área da Educação, foi trabalhado desde o ano de 2023 por nossa equipe técnica e agora está a um passo de se tornar realidade”.
A escola
A escola de tempo integral com 13 salas de aula é um projeto padrão do Fundo Nacional de Desenvolvimento da Educação (FNDE).
A estrutura visa um ambiente completo para o aprendizado e desenvolvimento dos estudantes, idealizada para atender aos dois ciclos do Ensino Fundamental compostos pelos segmentos do 1º ao 9º ano.
Esse modelo de construção é padronizado pelo FNDE e tem sido implementado em diversas cidades do Brasil. O objetivo é modernizar a infraestrutura educacional e ampliar o acesso à educação em tempo integral.









